S2.jpg

Сахарова 39

САХАРОВА 39

 

КОРОТКИЙ ОПИС 

Важлива частина львівської ідентичності - це фабричні споруди різних періодів побудови. Для нашого офісу є дуже важливим толерування промислової архітектури з її особливостями. Представляємо Вашій увазі матеріали проєкту реконструкції корпусу Львівприладу, який почав будуватися ще за радянських часів і був закінчений лише у 1994 році, але так і не використовувався за призначенням. Попри холодний промисловий характер, існуюча будівля стала частиною асоціації львівʼян з цією дільницею міста.

Адаптація промислової архітектури під нові функції вимагає певного втручання задля переформатування закритого виробничого середовища у привітний простір. Гуманізація цього простору могла би відбутися за допомогою інтегрування будівлі у пішохідну частину вулиці Сахарова, утворюючи звʼязок між спорудою, парком Горіховий гай та сусіднім комплексом Lviv Tech City.

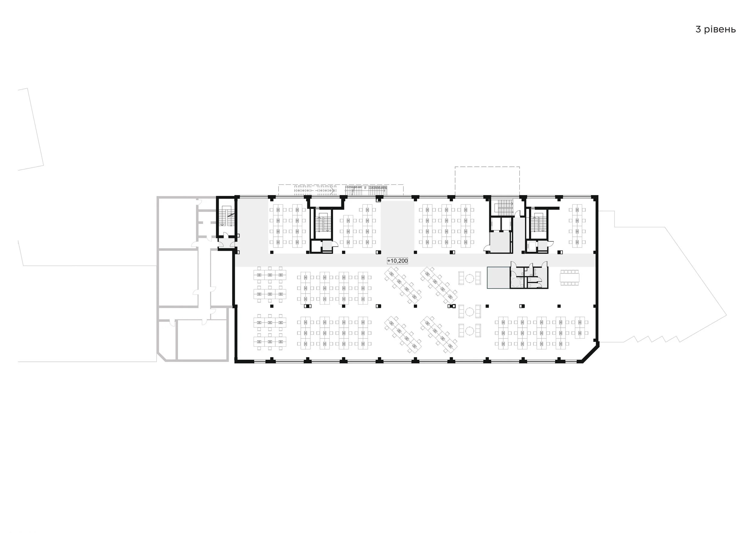
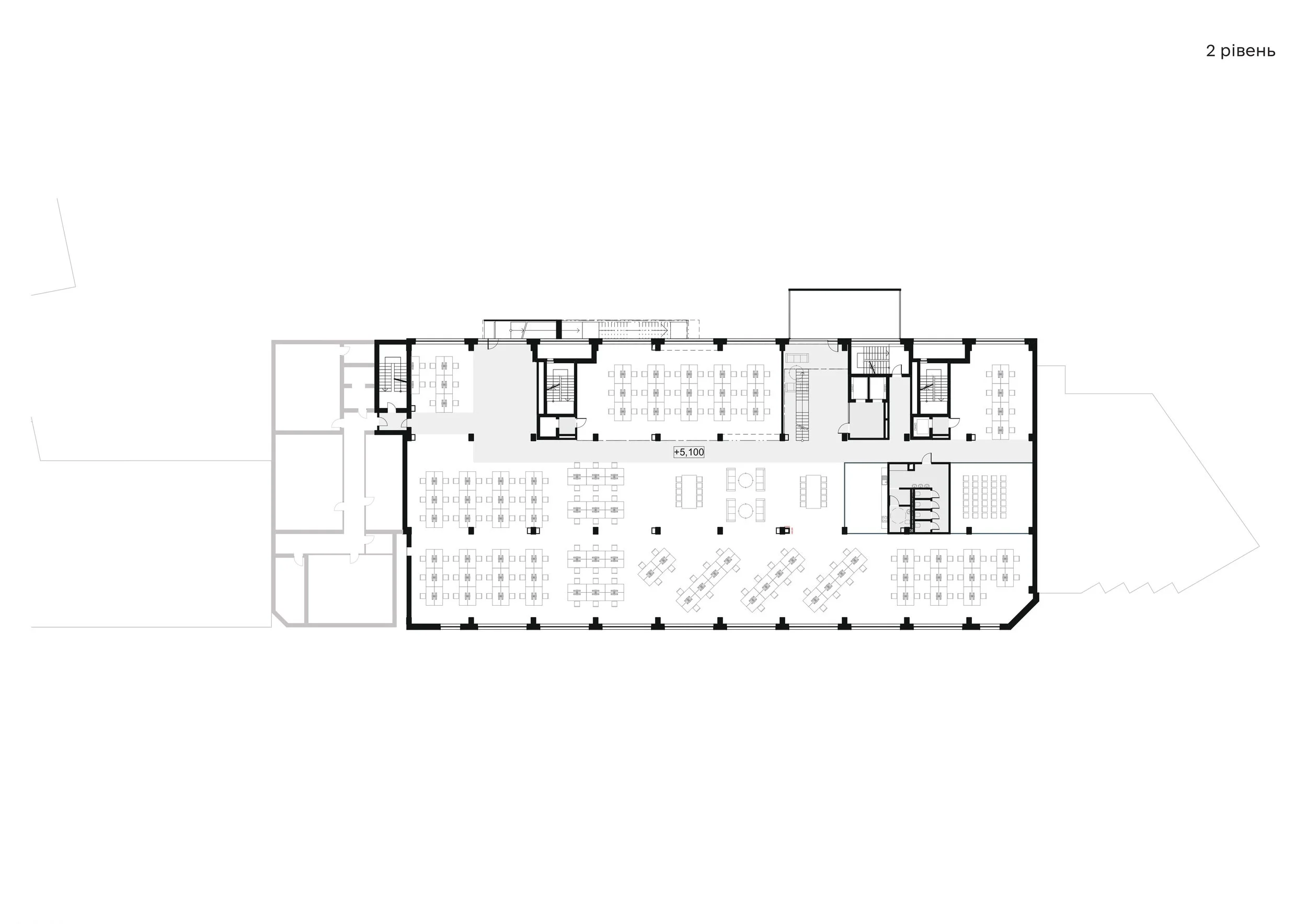
В будівлі  з першого по третій поверхи пропонується влаштування  об’єктів громадського  призначення (офіси, представництва компаній, виставкові зали, заклади громадського харчування  тощо), а з четвертого по восьмий – житлові  одиниці.

Архітектура верхніх поверхів — це спосіб віддати данину втраченим обʼєктам фабричної архітектури нашого міста. Для нас цей проект — спроба осмислити яким мало би бути сучасне якісне житло, яке будується на основі колишньої промислової будівлі.

 

ТЕХНІЧНІ ДАНІ

Назва обєкту: Сахарова 39

Категорія: Пряме замовлення. Житло, реконструкція.

Розташування: Львів, Україна

Рік: 2021

Статус: Проєкт

Команда: Наталя Зінчук, Дмитро Матвіїшин

 
 

ІСТОРИЧНІ ПРОМИСЛОВІ СПОРУДИ ЛЬВОВА

ІСНУЮЧИЙ СТАН БУДІВЛІ

ЗМІНИ

МОЖЛИВІ ВАРІАНТИ НАДБУДОВИ

СХЕМА ГЕНПЛАНУ

РОЗГОРТКА З ВУЛИЦІ САХАРОВА